
Imágenes de la situación actual de la construcción de Linked Hybrid de Steven Holl. En las imágenes se puede ver las estructuras de acero del anillo que une el grupo de edificios, que da nombre al proyecto. Unos puentes de acero que cuentan con un programa de piscinas , salas de ejercicio y cafeterías.
Se espera que las obras finalicen al final de este año.







Fuente | Dezeen
Steven Holl "Linked Hybrid" En Construcción
Etiquetas: Arquitectura, Steven Holl, Vivienda Colectiva
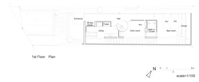
Atelier Tekuto "Parabola House"
Parabola House se situa en una zona residencial rodeada de zonas verdes. Se erige 3 metros por encima del nivel de la tierra con fabulosas vistas hacia el monte Fuji. Los miembros de la familia suelen pasar la mayor parte del tiempo en el salón, que está situado en el último piso para aprovechar las preciosas vistas.
Parte de un diseño minimalista, con un techo de forma parabólica que es el que da nombre a la casa. El diseño interior es una serie juegos de colores y contrastes, en los que el color predominante es el blanco, creándose una serie de ritmos que estructuran el diseño de la vivienda.




















Fuente | Dezeen
Etiquetas: Arquitectura, Atelier Tekuto, Vivienda
Felipe Assadi "Schmitz House" en Santiago de Chile
El encargo para la Casa Schmitz es una vivienda para un matrimonio sin hijos en una localidad vecina a la ciudad de Santiago. El programa solicitado no exige alteraciones al funcionamiento doméstico de una casa, por lo tanto se abre una segunda revisión de condicionantes para el diseño de la vivienda.





Calera de Tango es una comuna ubicada a una hora de la capital. Se encuentra en una situación intermedia entre la Cordillera de Los Andes y la Cordillera de la Costa, desde la cual se puede observar ambos límites con gran claridad durante todo el año.
Luego, el solar de 4,5 há se encuentra completamente plantado con árboles frutales de mediana envergadura sobre una trama de 4 x 4 metros, perfectamente orientada con los puntos cardinales. Cada árbol se presenta con un tronco de un metro aproximadamente y un follaje que ocupa los siguientes 2,5 metros. El terreno, en su dirección oriente poniente presenta una leve pendiente no superior al 2% sobre la cual corren los canales de riego, siendo esta una zona altamente inundable. La proporción de los árboles en cuanto a su tronco y follaje hablan quizá de esta configuración natural de los elementos bajo condiciones específicas.
Con estas observaciones se inicia un proceso de medición en cuanto a estratos. Los niveles de los elementos, por una parte, las orientaciones, direccionamiento y vistas por otra.
Primero se establece una proporción longitudinal, de modo de no alterar mayormente la plantación. A esto se le suma la alternativa de un módulo basado en los 4 metros que la plantación proporciona. Se establece entonces una volumetría que tiende a una dirección oriente - poniente, de modo de enfrentar la casa hacia el norte en su largo a la vez que se quita solamente una hilera de frutales.
En segundo lugar, se diferencian tres niveles de uso. El primero, determinado por la altura de los troncos de los frutales, que genera un zócalo de aproximadamente un metro de altura. El segundo nivel ocupa el espesor de los follajes, sobre el cual se proyectan los recintos comunes. El tercer y último nivel es sobre la plantación. En este plano aparece una vista transversal hacia las dos cordilleras (una ubicada al oriente y la otra al poniente) por lo tanto la dirección de esta volumetría se proyecta perpendicularmente a las anteriores.
En el primer nivel se proyecta un doble muro de 36 metros de longitud con una sección interior de 2,3 metros y un metro de altura. Este elemento, además de ser el zócalo de fundaciones de la casa, actúa por peso, por lo tanto de su uso depende la estabilidad de los elementos superiores. El primer tramo este doble muro es una piscina, que contiene la sala de máquinas y una pequeña bodega exterior. Luego, hacia el poniente, se convierte en el subterráneo bajo la cocina. Sobre la parte superior de este doble muro se apoyará la casa, a modo de un tren que descansa sobre un par de rieles.
El segundo nivel, que ocupa el espesor del follaje, se proyecta como una caja preferentemente vidriada que sobresale entre 1,25 y 2,5 metros hacia los costados del zócalo. El hecho de estar en medio de este bosque de árboles permitía pensar en cerramientos completamente transparentes, da tal modo que los límites visuales del espacio interior fuesen directamente los que generan los contornos de los frutales y sus variaciones dependiendo de las estaciones del año. En este cuerpo vidriado se programa el estar, el comedor, la cocina, un dormitorio de invitados y un pequeño escritorio. La estadía de los ocupantes es, durante el día, en su mayor parte en estos recintos de estar. La orientación hacia la luz solar de estos espacios es por lo tanto una elección fundamental, a la vez que el calce con la trama de los árboles parece ser casi una orden que establece el predio.
En el interior de este volumen se diseñan ciertos elementos estables, de modo de garantizar un uso adecuado de un espacio que no permite una organización perimetral de los elementos de uso común. Un mobiliario integrado a la fachada, un cajón de hormigón que separa de cierto modo el estar del comedor y una cocina flotante, que aparece como un pormenor dentro del espacio general. Desde la cocina se accede al subterráneo, lugar donde se emplaza todo el equipamiento de uso doméstico, el lavadero, sala de planchar y cava de vinos.
La cubierta de este volumen se ocupa como terraza del nivel superior.
El vínculo de este cuerpo con el anterior es a través de la piscina, a la cual se puede acceder desde el interior de la vivienda.
El tercer nivel lo ocupa el dormitorio principal. En este caso se optó por un volumen de hormigón preferentemente opaco, cuyas aberturas hacia el exterior se determinan por una parte por las vistas hacia ambas cordilleras y por otro lado, la entrada dosificada de luz solar, eludiendo de modo explícito la sobre exposición tanto a los posibles vecinos como a los rayos solares durante el día. La orientación de este cuerpo es perpendicular al anterior, sobresaliendo de este entre 1,25 y 3 metros hacia los costados. De este modo se produce el cantilever que hace actuar al zócalo como elemento estabilizador mediante un muro bandera que emerge desde la base de la casa y forma parte de la caja de escaleras.
Si bien existe una condición bastante estrecha con las variables del contexto, las operaciones expuestas por esta casa son evidentemente esquemáticas. En esto radica quizá la pureza de elementos que parecen ser absolutamente separables el uno del otro.
La casa Schmitz finalmente se observa como una pesada caja de hormigón que es sustentada por un liviano cuerpo de vidrio, ambos elementos haciendo equilibrio sobre un par de rieles de hormigón en el medio de un campo de frutales, algo que quizá interrumpe la lógica de los materiales, pero que a su vez potencia la idea de liviandad sobre el terreno.
La composición final de esta casa, evidentemente objetual frente al contexto se completa con una rampa de hormigón ubicada al lado sur de la vivienda. Dado que la llegada a esta es por el lado norte, se debe recorrer perimetralmente la casa hasta su acceso. La aparición de esta rampa potencia la situación de estar sobre la tierra, acometiendo a la casa en un lugar determinado únicamente por el programa interior. La casa no tiene otra señal de acceso, dado que al ser una isla en medio del campo, se presenta como un pabellón que no jerarquiza ninguna situación n particular.
Más en la web de Felipe Assadi
Etiquetas: Arquitectura, Felipe Assadi, Vivienda























